依据《中华人民共和国城乡规划法》和建设部《关于城乡规划公开公示的规定》等相关规定要求,该项目的建设工程规划许可证总平面图进行批前公示,公示时间为7个工作日。
建设单位名称:玖龙纸业(天津)有限公司
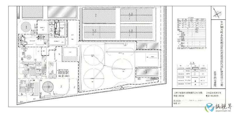
工程项目名称:年产50万吨本色浆制造替代废纸浆技改(一期)项目
建设规模:9919.49㎡(地上部分) 0㎡(地下部分)
公示日期:2025年10月23日——2025年10月31日(7个工作日)
公示部门:天津市规划和自然资源局宁河分局
地址:天津市宁河区芦台镇光明路72号
邮编:301500
联系方式:69118530

编辑:夏远 校对:江海
此文章为本网转载其他媒体、网站、自媒体,出于传递更多信息之目的,并不意味着赞同其观点或认可其内容的真实性,版权归属原网站和原作者所有,如涉及版权问题,请联系本网撤销删除。如其他媒体、网站或个人从本网下载使用,必须保留本网注明的“稿件来源”,并自负版权等法律责任。如擅自篡改为“稿件来源:纸视界”,本网将依法追究责任。